市地方金融监督管理局档案室规划建设及设备采购项目邀标采购公告
一、采购项目名称
(一)项目名称:市地方金融监督管理局档案室规划建设及设备采购项目
(二)项目预算金额:本次采购项目为部门自行采购项目,总报价超过17万(人民币)以上为无效投标。
二、项目概况
我局在履行相关职责的同时产生大量的文件及档案,因无专门档案室来用于收集、整理、存贮的档案文件,每年形成的文件定期向市档案馆移交外,其他类别的档案存放临时资料室或各业务处室保管。根据《深圳市市级党政机关单位档案工作检查办法》(深档发〔2021〕4号)要求,结合本单位的实际情况,需逐步完善体制机制建设、基础设置建设、基础业务建设及信息化建设等方面等工作。通过本次项目进一步完善档案室规划建设、档案室设备采购,使其达到档案安全保管的基本要求。
三、供应商资格要求
(一)供应商应具备在档案学会备案企业资质。
(二)符合《中华人民共和国政府采购法》第二十二条规定的条件,国内注册(指按国家有关规定要求注册的),依法能提供本次采购服务,具有法人资格的供应商。
(三)在深圳参与的采购活动中无违规记录,即在深圳市政府采购中心网站的曝光台中无相关记录。
(四)本项目不接受联合体竞标。
四、评标方法
本项目采用综合评分法的,满分100分,得分最高的投标人为中标供应商。最低报价不作为成交保证。
(一)价格分
价格分满分为40分,以满足采购需求且报价最低的报价为评标基准价,其价格分为价格分满分,其他报价人的价格分统一按下列公式计算:
报价得分=(评标基准价/报价)×价格权值×100。
(二)商务分
商务分满分为25分,由评审小组根据供应商的公司资质、人员安排、售后服务等打分,评分标准如下:
1.供应商提供涉档案中介备案回执得8分;
2.供应商提供相关人员安排得8分;
3.供应商提供售后服务承诺函得9分。
(三)技术分
技术分满分为25分,由评审小组根据供应商的公司提供的实施方案的优良程度打分。
(四)业绩分
业绩分满分为10分,由评审小组根据公司以往类似服务数量打分,每提供一个类似服务的合同为2分,最高10分。
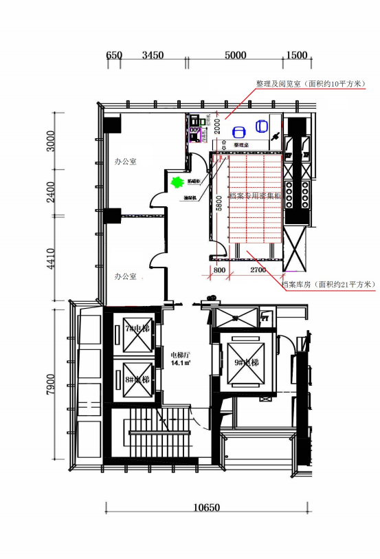
五、规划要求
经前期请第三方勘查测量,拟建设档案库房及整理阅览室基本设计格局如下:

六、设备需求
七、商务需求
(一)档案室建设期限: 1个月(定制的设备类购置可适当放宽期限),售后服务期:1年
(二)服务地点:采购单位指定地点
(三)项目属性:工程类项目
(四)报价要求:
1.本项目服务费采用包干制,应包括服务成本、法定税费和企业的利润。由投标供应商根据采购文件所提供的资料自行测算投标报价;一经中标,报价总价作为中标供应商与采购人签定的合同金额,合同期限内不做调整。
2.投标供应商应当根据本企业的成本自行决定报价,但不得以低于其企业成本的报价投标。
3.投标供应商的报价不得超过项目预算金额。
4.投标供应商的报价,应当是本项目采购范围和采购文件及合同条款上所列的各项内容中所述的全部,不得以任何理由予以重复。
5.除非采购人通过修改采购文件予以更正,否则,投标供应商应毫无例外地按响应文件所列的清单中项目和数量填报综合单价和合价。投标供应商未填综合单价或合价的项目,在实施后,将不得以支付,并视作该项费用已包括在其它有价款的综合单价或合价内。
6.投标供应商应按要求提供包含报价函、法人授权委托书、资质审查材料和其他证明文件(纸质材料一式5份(一正四副),电子光盘1份)应装订良好并分别密封于信封(或包装袋)中(格式见附件),并自行承担所有与编写和提交响应文件有关的费用。
7.投标供应商不得期望通过索赔等方式获取补偿,否则,除可能遭到拒绝外,还可能将被作为不良行为记录在案,并可能影响其以后参加政府采购的项目投标。各投标供应商在报价时,应充分考虑报价的风险。
八、提交投标文件联系方式、地点和截止时间
(一)联系人:张先生 88127356 蔡先生 88125245
(二)投标地点:深圳市福田区市民中心C区4117室
(三)投标截止时间:2021年11月 11日17点前
九、附件
1.报价函
2.报价表
3.法人授权委托书
4.技术响应、偏离情况说明表
5.商务响应表
6.资质审查材料及其他证明材料
市地方金融监督管理局
2021年11月4日
相关附件: